
0125 Hotel Aarauerhof, Aarau
Wettbewerb
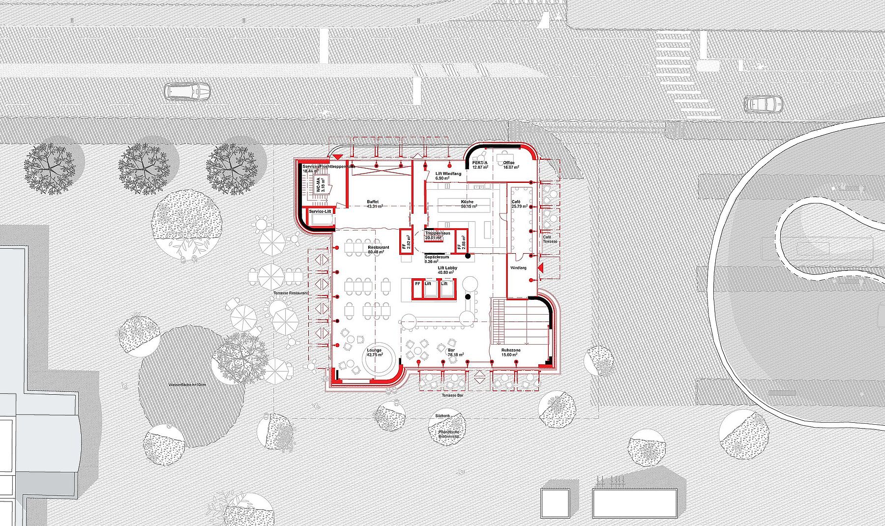
Um der neuen Situation gerecht zu werden, wird das Gebäude ertüchtigt, sich als selbstbewusstes Volumen mit klarer Adresse an den umgebenden Stadt Plätzen zu behaupten. Mit dem aktiven Erdgeschoss und der einladenden, rund 4m hohen Glasfassade soll das Gebäude zu einer vielseitig belebten Situation beitragen. Um das zu erzielen, spielt die Lobby des Hotels als Dreh- und Angelpunkt eine wichtige Rolle als "Attraktor" - ein Treffpunkt für Hotelgäste, Passanten und Besucher. Je mehr Gründe es gibt den Ort zu besuchen und dort zu verweilen, desto höher die Chance, dass sich eine erfolgreiche Belebung der Plätze erfolgt. Ein Café zum Busbahnhof oder die Nutzung des Veranstaltungsraums im Untergeschoss für Musikveranstaltungen, sowie das neue Auditorium mit Sitzstufen im Erdgeschoss beleben Gebäude und Stadtraum. Ein Merkmal der Raumorganisation ist die Bemühung jede Gelegenheit zu nutzen, um Verbindungen zwischen innen und aussen zu schaffen – ob visuell oder programmatisch.
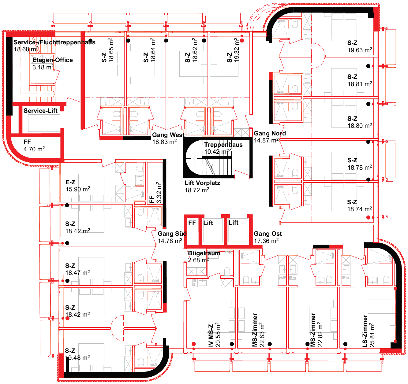
Aus diesem Grund wird bewusst auf eine öffentliche Dachterrasse verzichtet, um die Begegnungsfrequenz unten möglichst zu maximieren. Die Hotelzimmer auf dem Dach weisen dennoch einen privaten Austritt und begrünten Garten mit Alpenblick auf dem Dach auf. Der nicht begehbare Teil des Daches soll des Weiteren für das Mikroklima und die Biodiversität begrünt werden.
Projektinformation
Architekt | ARGE Tschudin Urech Bolt AG & Stern Zürn Architekten
Baumanagement | WB - Wanko Baumanagement AG
Tragwerksplaner | Schnetzer Puskas Ingenieure AG
Bauphysik | Steigmeier Akustik + Bauphysik GmbH
HLKS Ingenieur | Bogenschütz AG
Elektro Ingenieur | Mettler + Partner AG
Nachhaltigkeit | Büro für Nachhaltigkeit am Bau AG
Fassadenplaner | Lüchinger Meyer Partner AG


Konzept - Ninesquare Grid
“Architektur beginnt mit der “9-Square Grid.” So der amerikanische Architekt und Pädagoge, der das raumbildende Konzept Mitte des 20. Jahrhunderts entwickelte. Das “9-Square Grid.” schlägt eine Brücke von der Antike in die Moderne -ein Gestaltungsprinzipien, dass die Vergangenheit mit moderner Innovation verbindet. Somit reit sich der Aarauerhof konzeptionell, wie die anderen Bauten an der Bahnhofstrasse, in das klassische Ordnungsprinzip der Marginale ein. Das Haus baut gleichermassen auf den klassischen Idealen von Proportion und Symmetrie auf und spiegelt die Entwürfe der Renaissance und dem alten Griechenland in einer brutalistischen Ausdrucksweise wieder.






Mit seinem offenen Erdgeschoss und der rund 4 m hohen Glasfassade trägt das Gebäude zu einem lebendigen Stadtraum bei. Die Hotel-Lobby fungiert als zentraler Treffpunkt für Gäste, Passanten und Besucher. Zusätzliche Angebote wie ein Café beim Busbahnhof, ein Veranstaltungsraum im Untergeschoss oder das neue Auditorium mit Sitzstufen fördern die Nutzung und Belebung. Die Architektur sucht dabei stets den Dialog zwischen Innen und Aussen – visuell wie funktional.



Umbau Fassade
Die Hülle von Justus Dahinden wird in die Gegenwart geholt und neu geschichtet.
Die beim ersten Umbau stark veränderte Geometrie wird aufgeräumt, nach oben erweitert und auf das Wesentliche reduziert.
Die skulpturalen opaken Ecken werden in drei Funktionsschichten aufgeteilt:
1. Holzständer oder CLT im Bereich Aufstockung als tragende Wand in Dahindens Viertelkreisgeometrie
2. Dämmebene mit Aluminium-Unterkonstruktion über die gesamte Fassadenhöhe
3. Eine materialoptimierte Ziegelverkleidung, die eine vertikale Rillierung erzeugt, brutalistische Vorbilder evoziert und dabei eine städtische Eleganz ausstrahlt.
Die Langlebigkeit und Robustheit mit geringem Materialeinsatz ertüchtigen die muralen Ecken für eine weitere Lebensdauer von +30 Jahren.

