
3924 - Elektrowerkstatt Windisch
Die Liegenschaft an der Hauserstrasse 67 befindet sich in einem gemischt genutzten Quartier am Übergang zwischen kleinteiliger Wohnbebauung und gewerblich genutzten Strukturen. Die bestehende Bebauung entlang der Hauserstrasse ist durch eine heterogene Typologie geprägt, wobei sich Werkstattgebäude, Einfamilienhäuser und kleinere Mehrfamilienhäuser abwechseln.
Mit dem Neubau der Elektrowerkstatt wird ein bestehender Gewerbestandort zeitgemäss weiterentwickelt. Die Setzung des Gebäudes orientiert sich an der bestehenden Bauflucht und respektiert zugleich die kleinteilige Körnung der Nachbarschaft. Durch die klare Positionierung entlang der Hauserstrasse wird der Strassenraum gestärkt, während der rückwärtige Bereich als funktionaler Hof und ruhiger Arbeitsbereich dient. Die Volumetrie und Massstäblichkeit des Neubaus vermitteln zwischen den angrenzenden Wohnbauten und den industriell geprägten Strukturen südlich der Parzelle. So trägt der Neubau zur städtebaulichen Klärung und Aufwertung dieses Übergangsraums bei.
Projektinformation
Planerevaluation | 1. Rang
Bauherrschaft | Davent Holding AG
2024 - 2027
Bauingenieur | VZP Ingenieure AG
HLKS Planer | Poly Team AG
Elektroingenieur | Poly Team AG
Bauphysik | Steigmeier Bauphysik
Visualisierung | Studio Blomen

Nutzung
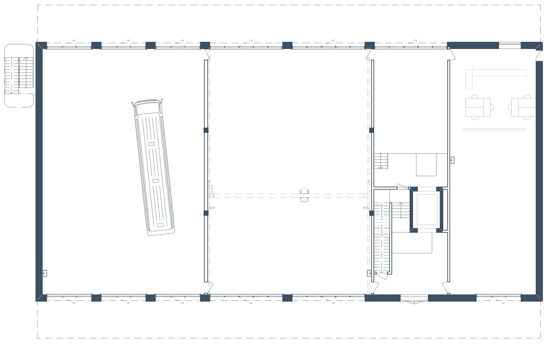
Der Neubau folgt einer klaren, funktionsorientierten Struktur, die auf effiziente betriebliche Abläufe und hohe Flexibilität ausgelegt ist. Im Erdgeschoss sind zwei Werkstätten und ein Ersatzteillager entlang einer zentralen Erschliessungs- und Lieferachse angeordnet, die als Hauptzufahrt für Waren dient. Ein darüber liegendes Zwischengeschoss nutzt die Raumhöhe optimal und integriert die Garderoben der Mitarbeitenden direkt an die Werkstattbereiche.Das erste Obergeschoss beherbergt weitere Lagerräume sowie entlang der zentralen Erschliessungsachse die Aufenthaltsräume der Mitarbeitenden, wodurch eine klare Trennung zwischen produktiven und pausenbezogenen Nutzungen entsteht. Das zweite Obergeschoss ist vollständig dem Lagerbetrieb vorbehalten. Alle Obergeschosse sind für flexible Lagernutzung mit 4,50 m Raumhöhe und 1.000 kg/m² Bodenbelastung konzipiert, direkt an den zentralen Warenlift angebunden und bei Bedarf in Einheiten teilbar oder für Büros, Garderoben oder Pausenräume umnutzbar. Fensteröffnungen können später wirtschaftlich nachgerüstet werden.Die beiden Untergeschosse bleiben als bestehende Betonstruktur erhalten, werden weiterhin als Selfstorage- und Möbellager genutzt und sind ebenfalls an den Warenlift angebunden. Für den Neubau werden die oberirdischen Bestandsstrukturen vollständig zurückgebaut.



Konstruktionsprinzip
Die Stützen der Stützen-Platten-Konstruktion orientieren sich an den tragenden Wänden der bestehenden Untergeschosse. Die bestehende Treppe wird folgerichtig in die Obergeschosse weitergeführt.
Analog zu Le Corbusiers Prinzip der freien Grundrissgestaltung – ermöglicht durch das Stützen-Platten-System etwa im Haus von Karthago – schafft das klare, regelmässige Raster eine hohe Nutzungsflexibilität. Gerade im Kontext der sich rasant entwickelnden Elektrobustechnologie ist diese Anpassungsfähigkeit ein entscheidender Mehrwert.Lagerflächen zu ermöglichen.
Konstruktion
Die Konstruktion des Neubaus ist konsequent auf die betrieblichen Anforderungen und die hohen Traglasten der Lagerflächen abgestimmt und folgt einem hybriden System. Die beiden Untergeschosse bleiben in ihrer bestehenden Betonstruktur erhalten und werden punktuell mit neuen Betonelementen verstärkt, um den heutigen statischen Anforderungen zu entsprechen.
Vom Erdgeschoss bis ins erste Obergeschoss entsteht eine robuste Stützen-Platten-Konstruktion. Das zweite Obergeschoss wird in leichter Stahlbauweise ausgeführt, um das Eigengewicht der oberen Gebäudeteile zu reduzieren und materialsparende Spannweiten für die Lagerflächen zu ermöglichen.
Fassade
Die Gebäudehülle ist additiv konzipiert und umschliesst den gesamten Baukörper. Im Sinne einer konsequenten Bauteiltrennung kann die Fassadenschicht in späteren Lebenszyklen verändert oder ersetzt werden, ohne die Primärstruktur wesentlich zu beeinflussen.



