
1519 - Kantonsschule Wettingen Karrenstall
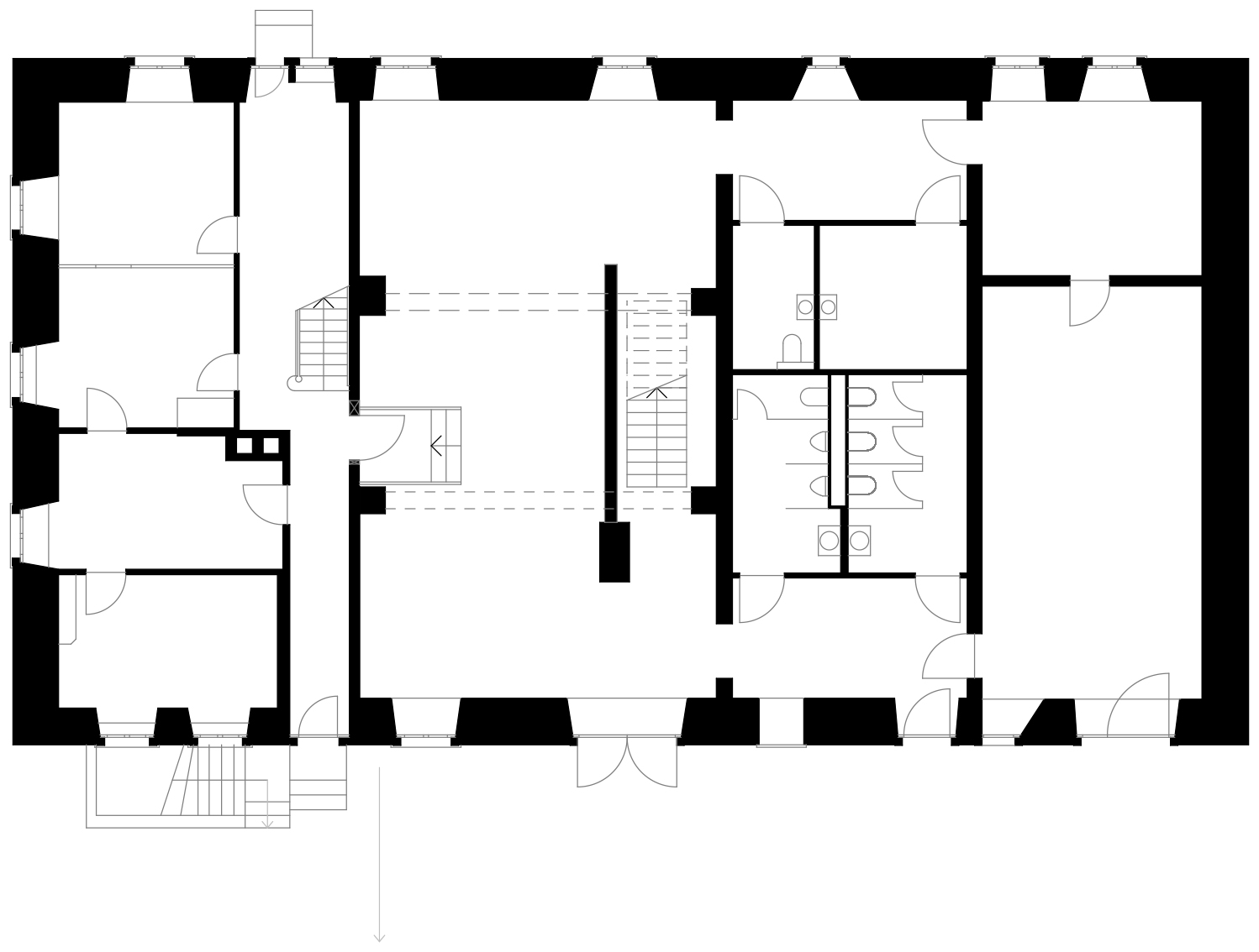
Die Klosterinsel Wettingen geniess mit ihrem einmaligen Ensemble aus Kloster, Klosterareal und weiteren historischen Gebäuden internationale Ausstrahlung. Die Geschichte des besterhaltenen Zisterzienserklosters etwa reicht bis ins 13. Jahrhundert zurück. Ebenso zu den Kulturgütern dieses Kraftortes an der Limmat zählt der ehemalige, unter Denkmalschutz stehende «Karrenstall». Dieser altehrwürdige Bestandsbau durchlebte im Laufe der Zeit so einiges an baulicher Veränderung. Mehrere Umbauten haben seinen einstigen Zweck mit verschiedenen entstandenen Nutzungen «vernebelt». Die Substanz ist das älteste noch bestehende Ökonomie-Gebäude entlang der Klosterstrasse. Eine Altersbestimmung des Dachgebälks ergab das Jahr 1662. Bis Ende des 18. Jahrhunderts war das Gebäude rein wirtschaftlich genutzt worden, nach dem Einbau einer Wohnung diente der Karrenstall als Bauernhaus. Ab Mitte des 20. Jahrhunderts wurde er zum Wohnhaus umgenutzt. Seit 2007 stand der Karrenstall leer.
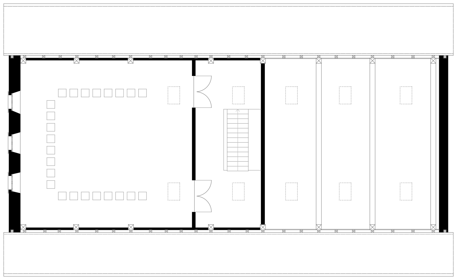
Das sanierte und für den Musikunterricht der Wettinger Klosterschule entsprechend veränderte Gebäude steht direkt an der Hangkante und erstrahlt auf der Westseite der ehemaligen Klosteranlage in neuem Glanz. Ein neuer in den Bestand eingebauter Treppenkern erschliesst zwei grosse Säle zum Musizieren, die aus dem früheren, sogenannten «Berge-Raum», in dem früher Heu und Getreide gelagert wurde, entstanden sind.
Viele vorhandenen Elemente, wie etwa die rund 200 alten, nicht durchbohrbaren Holzträger oder die Schlacken aus alten Hochöfen in den Böden, bedurften einer präzisen Vorabklärung und eines intensiven Dialogs mit der kantonalen Denkmalpflege. Um die Statik zu erhalten, waren Stahlträger in das aus natürlichen Steinen bestehende Mauerwerk zu ziehen. Die neue Materialisierung nähert sich der monolithischen Identität der bestehenden Substanz an.
Publikationen
Publikation - Badener Tagblatt
Projektinformation
Planung und Ausführung | 2020 bis 2021
Bauherrschaft | Kanton Aargau
Bauingenieur | VZP Ingenieure
Fotograf | Daniel Dubois Photographie


"Beim Umbau war wichtig, möglichst wenig Eingriffe in die historische Substanz zu machen
und die vorhandene Raumfolge und Raumstruktur möglichst zu erhalten."
Lukas Bonauer | Publikation 2023










